Работаем по всей России

Проектирование доступной среды для ЧОУВО МУ им С Ю Витте

Целью данного проекта является обеспечение легкого доступа для людей с ограниченными возможностями здоровья и маломобильных групп населения (МГН) к помещениям частного образовательного учреждения высшего образования "Московский университет имени С.Ю. Витте" (далее - Объект) по принципу "разумного приспособления".

В рамках проекта будет осуществлена адаптация эксплуатируемого помещения университета, расположенного по адресу: г. Москва, 2-й Кожуховский пр., д. 12, стр. 2.

Проект включает в себя комплекс мероприятий, направленных на улучшение архитектурной среды с соблюдением следующих аспектов:

  1. Обеспечение доступности целевых мест посещения по кратчайшему пути и беспрепятственного перемещения внутри помещений Объекта.
  2. Обеспечение безопасности путей движения и обслуживаемых зон.
  3. Своевременное предоставление полноценной и качественной информации МГН, позволяющей ориентироваться в пространстве, использовать оборудование (включая самообслуживание), получать услуги и т.д.

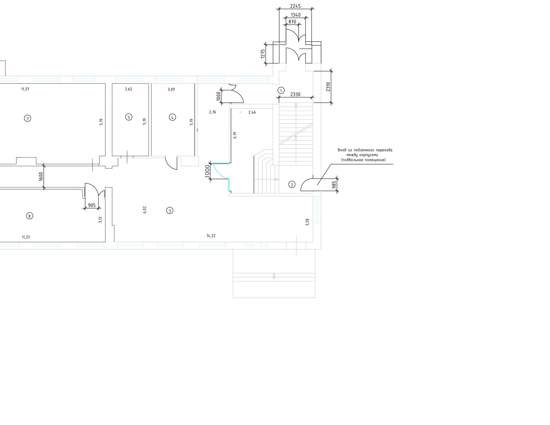
Входная группа

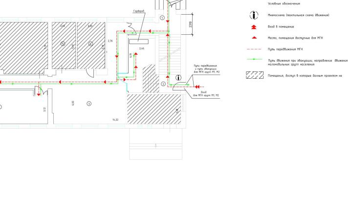
Для маломобильных групп населения (МГН) групп М1-М2 предусмотрен самостоятельный путь движения от входа в подземный переход, соединяющий корпус университета с Объектом, до внутренних помещений Объекта.

  • Перед выходом из подземного перехода в помещения Объекта установлен тактильно-визуальный знак "Вход в помещение".
  • После выхода из подземного перехода с правой стороны от ручки двери установлена мнемосхема тактильная с текстовой информацией, дублированной системой Брайля. С противоположной стороны двери установлен тактильно-визуальный знак "Выход из помещения".

Для инвалидов категории мобильности М3-М4 предусмотрен отдельный вход.

  • Рядом с входной дверью на Объект установлены знаки направления движения и доступности для инвалидов-колясочников.
  • Те же знаки установлены по правой боковой стене Объекта, указывая направление движения к входу на Объект.
  • Вход в помещение Объекта для МГН групп М3-М4 осуществляется через двупольную дверь, рабочая створка которой соответствует требованиям "разумного приспособления" шириной 0,87 м, с установленной тактильно-визуальной табличкой с дублированием информации по системе Брайля (100х300 мм) с указанием наименования учреждения и режима работы. Рядом с дверью также установлен знак доступности для инвалидов-колясочников. На стойке с другой стороны двери установлена антивандальная кнопка вызова персонала, передающая сигнал на приемное устройство ТИФЛОВЫЗОВ.

Пути движения МГН

Для обозначения направления движения МГН установлены тактильно-визуальные знаки "Направление движения", "Выход из помещения", "Туалет для инвалидов". В тамбуре перед лестницей на 2-й этаж рекомендуется оборудовать мини-гардеробную.

Входная дверь в тамбур является двупольной, рабочая створка имеет ширину 1000 мм. Перед входом установлен знак "Гардероб" вместе со знаком "Направление движения", а внутри тамбура - знак "Гардероб". Доступ на 2-й этаж не рассматривается для МГН. Чтобы визуально обозначить существующую лестницу, на первую ступень по всей длине установлены угловые противоскользящие накладки желтого цвета.

На стеклянные створки двери в тамбуре перед лестницей на 2-й этаж согласно требованиям СП 59.13330.2020 необходимо нанести контрастную маркировку в форме круга диаметром 0,2 м, расположить на двух уровнях: на высоте 0,9 м и 1,4 м. Ручку двери обозначают контрастным цветом (желтым). Знак, обозначающий место кратковременного отдыха или ожидания для инвалидов, устанавливается рядом с специально выделенной зоной общественного пространства, предназначенной для кратковременного отдыха инвалидов.

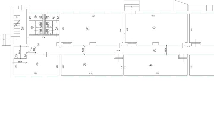
Адаптированная аудитория

Для адаптации аудитории используется помещение №8 "Класс", согласно спецификации на листе 10В00-000032-ОДИ-ГЧ. Дверь в аудиторию имеет две створки, рабочая створка шириной 905 мм, что соответствует требованиям пункта 6.1.5 СП 59.13330.2020. Цвет двери - синий, контрастный к светлым стенам. Ручка на двери выполнена из серебристого металла и установлена в соответствии с пунктом 6.4.1 СП 59.13330.2020. Рядом с дверью на стене, напротив ручки, установлена тактильная табличка "Назначение помещения".

Для улучшения восприятия информации людьми с нарушениями слуха (использующими слуховые аппараты) в ограниченном пространстве и при большой скученности людей, а также при наличии посторонних звуков или преград между собеседниками, используются специальные индукционные системы.

Эти системы производятся с использованием высококачественных комплектующих элементов из Европы. Конструктивно индукционная система представляет собой усилитель звуковой частоты. Звуковой сигнал передается на вход усилителя, который затем направляет обработанный сигнал в нагрузку. Кабель генерирует магнитное поле, меняющееся в соответствии с звуковыми колебаниями.

В приемной катушке устройства возникают токи, копирующие исходный звуковой сигнал. Полученный сигнал воспроизводится с помощью наушников, что позволяет передавать широкий спектр звуков даже при наличии значительных акустических преград. В данном проекте предусмотрена установка стационарной индукционной системы VERT-80, предназначенной для помещений площадью до 80 кв. м.

Проектные решения не ограничивают возможности других групп населения, находящихся в помещениях Объекта, и не влияют на их условия жизнедеятельности. После реализации предложенных мероприятий инвалиды групп мобильности М1-М4 смогут свободно перемещаться от входа в здание к внутренним помещениям Объекта.

Номер заказа 0В00-000139 ЧОУВО "МУ им. С.Ю.Витте" г. Москва.

Заказать проект

Выделите опечатку и нажмите Ctrl + Enter, чтобы отправить сообщение об ошибке.