Работаем по всей России

Адаптация помещений АО "Альфа-Банк" в городе Пушкино

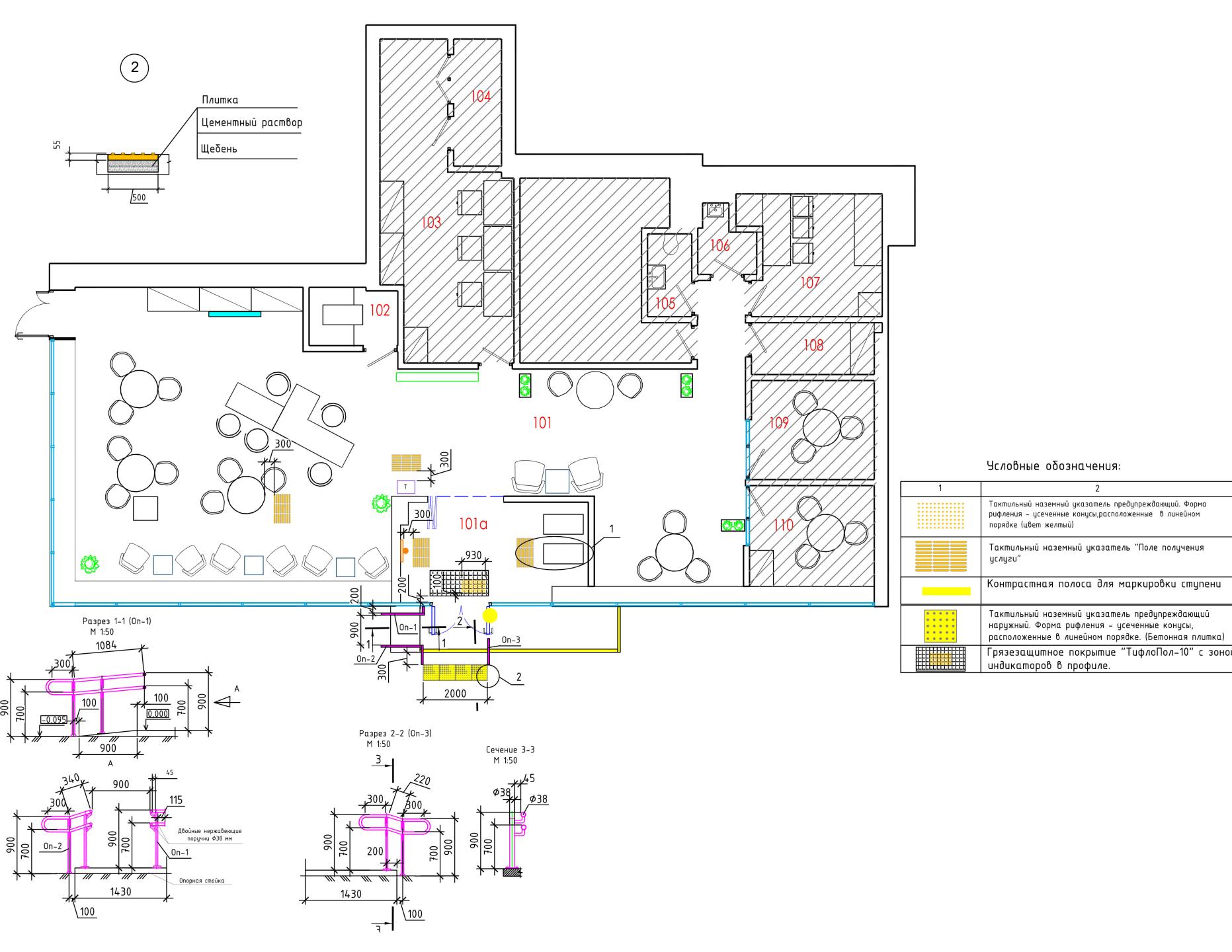
В соответствии с требованиями СП 59.13330.2020, важно обеспечить посетителям объектов массового посещения возможность однозначной информации о местах и объектах, получение информации о размещении функциональных элементов, ассортименте услуг и надежную ориентацию в пространстве. В рамках данного проекта предусмотрены тактильные визуальные указатели на путях перемещения маломобильных групп населения (МГН) для достижения указанных целей.

Также предусмотрена тактильная пиктограмма «Банкомат» (150 х 150 мм), которая располагается непосредственно рядом с доступным банкоматом.

Все эти указатели и знаки обеспечивают посетителям объекта информацию о его наименовании, режиме работы, размещении помещений, а также указывают на доступность для инвалидов различных категорий.

Закажите проект прямо сейчас!

Выделите опечатку и нажмите Ctrl + Enter, чтобы отправить сообщение об ошибке.