Работаем по всей России

Проектирование 10-го раздела ОДИ для гостиничного номера "Аметист" по адресу: Мурманская обл., г. Апатиты, ул. Ленина, д. 3

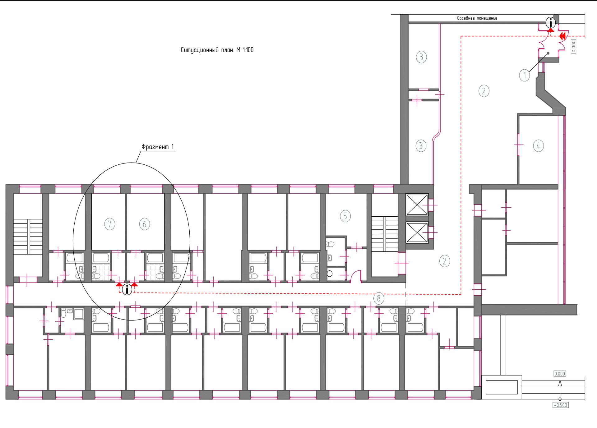
Данный проект разработан с целью обеспечения удобного доступа для людей с ограниченными возможностями и маломобильных групп населения (МГН) к гостиничному номеру с использованием принципа "разумного приспособления". В процессе адаптации двух номеров гостиницы "Аметист" по адресу: Мурманская обл., г. Апатиты, ул. Ленина, д. 3, они будут объединены в один номер.

Проектная документация разработана на основе следующих оснований:

  • технического задания на проектирование;
  • исходных данных, предоставленных заказчиком;
  • действующих строительных норм и правил.

В рамках проекта предусмотрены комплексные меры для улучшения качества архитектурной среды с учетом следующих аспектов:

  1. Обеспечение доступности целевых мест посещения по кратчайшему пути и беспрепятственного перемещения внутри гостиничного номера.
  2. Гарантирование безопасности путей движения и обслуживаемых зон.
  3. Своевременное предоставление МГН полноценной и качественной информации, необходимой для ориентации в пространстве, использования оборудования (включая самообслуживание) и получения услуг.

Проектные решения не ограничивают условия для других групп населения, находящихся в номере, и не ущемляют их возможности жизнедеятельности.

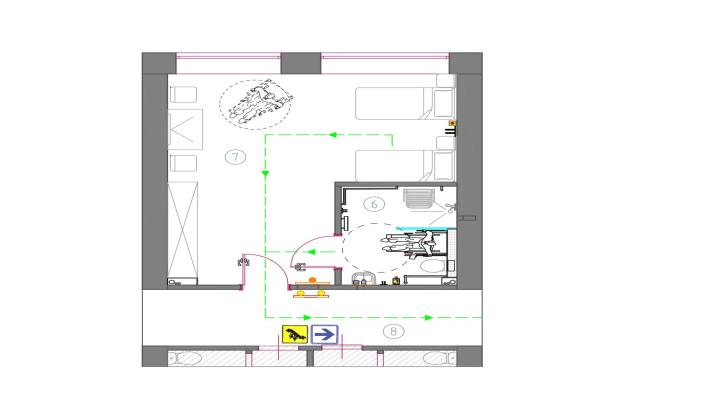
В рамках мероприятий по адаптации для людей с нарушением зрения предусмотрены следующие действия:

Тактильные настенные указатели на путях перемещения МГН. В соответствии с требованиями СП 59.13330.2012, технические средства информирования, ориентирования и сигнализации в общественных местах должны обеспечивать посетителям возможность получения однозначной информации о объектах и местах посещения, размещении и назначении функциональных элементов, а также надежную ориентацию в пространстве.

В рамках проекта предусмотрены следующие тактильные визуальные указатели на путях перемещения МГН:

  • Тактильная полноцветная табличка "Назначение помещения" размером 150х300 мм с дублированием информации в системе Брайля. Табличка будет установлена перед входной дверью сбоку от дверной ручки.
  • Тактильная мнемосхема с текстовой информацией, дублированной шрифтом Брайля, предоставляющая предварительное представление о пространстве номера для самостоятельного передвижения внутри него без помощи. Тактильная мнемосхема будет установлена внутри номера при входе сбоку от дверной ручки.
  • Тактильные пиктограммы размером 150х150 мм с изображением "Путей эвакуации". Они будут размещены на путях эвакуации МГН. Пиктограммы "Направление движения, поворот" размером 150х150 мм будут использоваться в сочетании с пиктограммами "Пути эвакуации".

Монтаж тактильных визуальных указателей будет осуществлен на высоте 1,2-1,6 м от уровня пешеходной поверхности в соответствии с листом 7 гр. ч. 0В00-000170-ОДИ-ГЧ.

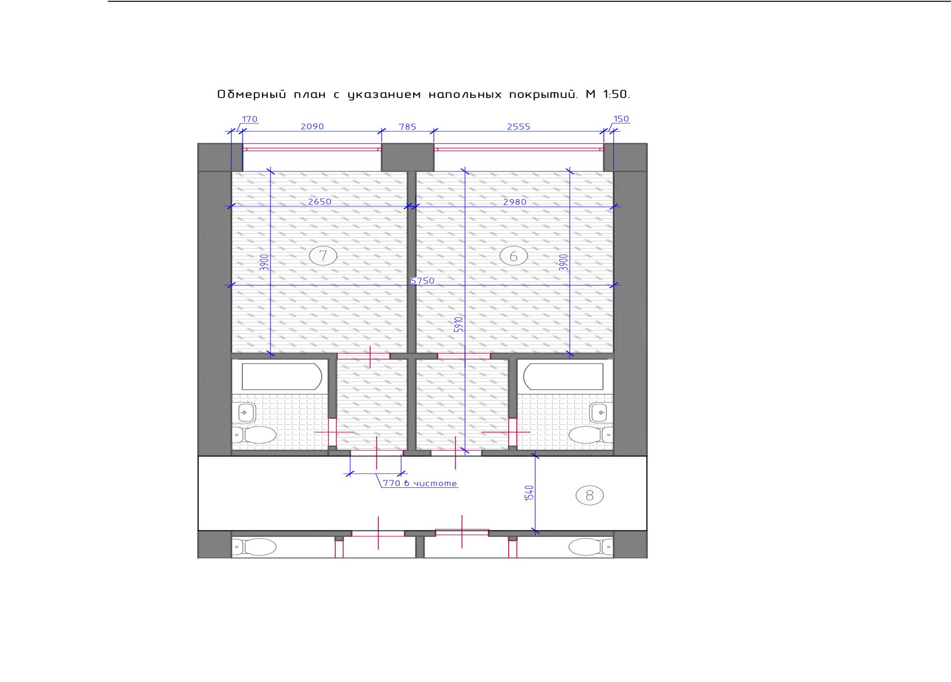
Адаптация номера для МГН. Для выполнения работ по адаптации номера и санузла будет придерживаться требований, указанных в листах 7, 8 и 9 гр. 0В00-000170-ОДИ-ГЧ.

Перечень использованных нормативных и регламентирующих документов:

  1. СП 59.13330.2012 "Доступность зданий и сооружений для маломобильных групп населения". Актуализированная редакция СНиП 35-01-2001 (с Изменениями №1).
  2. СП 59.13330.2016 "Доступность зданий и сооружений для маломобильных групп населения". Актуализированная редакция СНиП 35-01-2001.
  3. СП 136.13330.2012 "Здания и сооружения. Общие положения проектирования с учетом доступности для маломобильных групп населения" (с Изменениями №1).
  4. СП 138.13330.2012 "Общественные здания и сооружения, доступные маломобильным группам населения. Правила проектирования" (с Изменениями №1).
  5. ГОСТ Р 50602-93 "Кресла-Коляски. Максимальные габаритные размеры".
  6. ГОСТ Р 51261-17 "Устройства опорные стационарные реабилитационные. Типы и технические требования".
  7. ГОСТ Р 52131-2003 "Средства отображения информации знаковые для инвалидов. Технические требования".
  8. ГОСТ Р 52875-2018 "Указатели тактильные наземные для инвалидов по зрению. Технические требования".

Заказать проект

Выделите опечатку и нажмите Ctrl + Enter, чтобы отправить сообщение об ошибке.