Работаем по всей России

Проектирование раздела МОДИ (архитектурной среды) в 19 офисах Газпромбанка

Разработчик проектов, компания "Вертикаль", уже более 15 лет осуществляет деятельность по разработке и прозводству тактильной продукции для инвалидов и маломобильных групп населения (МГН), изучению способов ориентации людей с ограниченной функцией зрения, разработке и реализации мероприятий обеспечения доступности инвалидов (МОДИ) и МГН к социально значимым пространствам, адаптации архитектруной среды для инвалидов. 

Производственные мощности компании включают в себя более 8 различных цехов, расположенных в 22 тыс. м², что позволяет качественно и в срок производить любые объемы социально значимой продукции. Ключевые сотрудники компании являются дипломированными экспертами в области адаптации пространства для инвалидов и принимают постоянное участие в разработке ГОСТов и иной нормативной документации Российской Федерации. Нашими услиями было спроектировано и адаптированно более 400 социально значимых объектов по всей стране.

В 2023 году по заказу Газпромбанка мы разработали и реализовали более 10 проектов МОДИ. Проектная документация каждого из объектов готовилась и основывалась на следующих источниках:

  • техническое задание на проектирование,
  • предоставленные заказчиком исходные данные,
  • результаты обследования экспертами социально значимого объекта адаптации,
  • действующие строительные нормы и правила.

Предоставляемые проекты направлены на обеспечение безбарьерного доступа людей с ограниченными возможностями и МГН к помещениям банка согласно принципу "разумного приспособления".

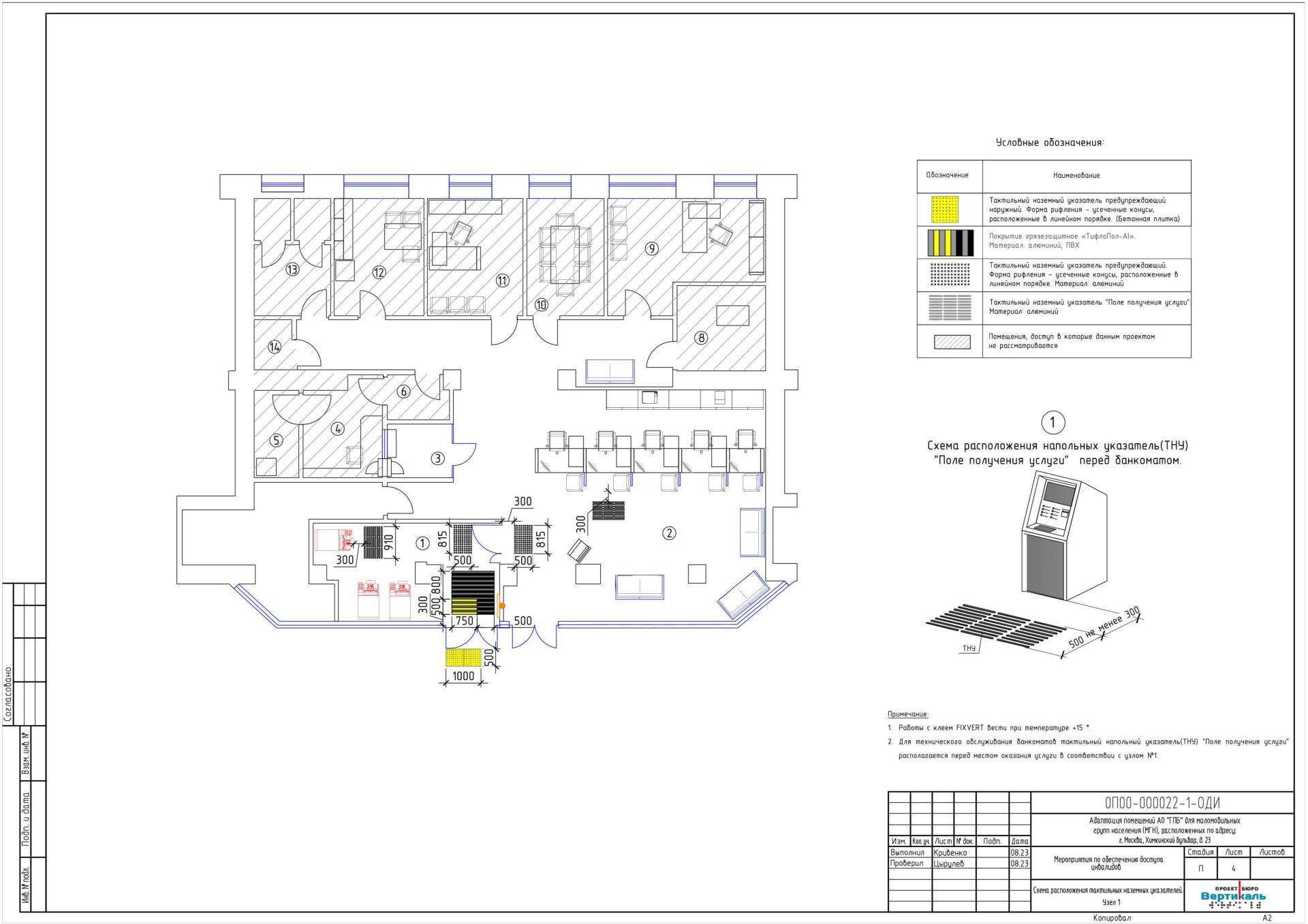
Проект входной группы и холла для офиса АО "ГПБ" , расположенного по адресу г. Москва, Химкинский бульвар, д. 23.

В рамках проекта будут проведены мероприятия, направленные на улучшение архитектурной среды с учетом следующих целей: обеспечение доступа к нужным местам с минимальными усилиями и возможность беспрепятственного передвижения внутри помещений банка; обеспечение безопасности маршрутов передвижения и зоны обслуживания клиентов; предоставление МГН полноценной и качественной информации, чтобы они могли ориентироваться в пространстве, использовать оборудование (в том числе для самообслуживания), получать услуги и т.д.

В результате реализации данного проекта будет обеспечен беспрепятственный доступ для людей с ограниченными возможностями и маломобильных групп населения к помещениям банка; будут размещены тактильные визуальные указатели (ТВУ) и тактильные наземные указатели (ТНУ).

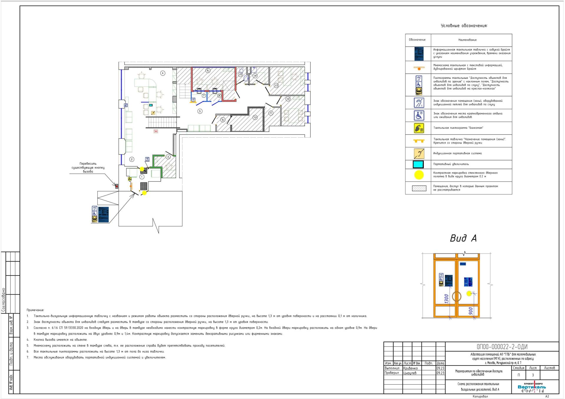
Проект по обеспечению доступности инвалидов к офису АО "ГПБ", расположенного по адресу г. Москва, Мичуринский пр-т. д. 7. 

В рамках проекта будут проведены мероприятия, направленные на улучшение архитектурной среды с учетом следующих целей: обеспечение доступа к нужным местам с минимальными усилиями и возможность беспрепятственного передвижения внутри помещений банка; обеспечение безопасности маршрутов передвижения и зоны обслуживания клиентов; предоставление маломобильным группам населения полноценной и качественной информации для удобства ориентации.

Эти проектные решения не будут влиять на возможности других групп населения, находящихся в помещении банка, и не создадут ограничений для их социальной активности.

Каждый проект проходит 2 этапа: первый этап - создание эскизного проекта, второй этап - подготовка проектной и сметной документации.

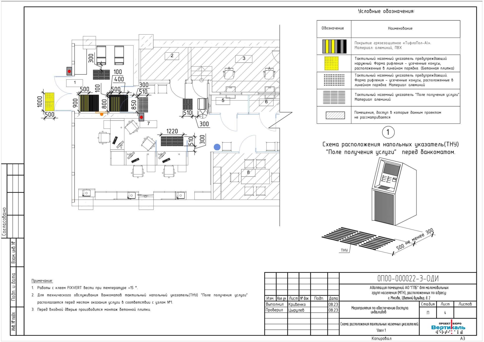
Проект раздела ОДИ для офиса АО "ГПБ", расположенного по адресу г. Москва, Цветной бульвар, д. 2.  

На этапе "создание эскизного проекта" происходит создание эскизного проекта на основе изучения технической документации на объект и проведение исследований на месте. В рамках этого этапа проводится экспертная оценка доступности объекта, в ходе которой выявляются участки и пространства, требующие принятия мер по обеспечению доступности для маломобильных групп населения и инвалидов: определение перепадов высот, ширины и сложности путей движения, расстояний до входных групп и другие параметры. По результатам экспертизы формируется список необходимых мер, заключение и паспорт доступности.

Эскизный проект содержит:

– список мер;
– поэтажные планы с отметками мест установки конструкций и других требуемых изменений;
– схемы организации земельного участка;
– обоснование предложенных архитектурных, технических или конструкторских решений.

На этапе "подготовка проектной и сметной документации" разрабатывается проектная и сметная документация с учетом всех требований законодательства по доступности зданий и сооружений. Документация включает в себя: пояснительную записку с исходными данными для проектирования, описанием объекта, обоснованием проектных решений и принятыми показателями, а также списком мероприятий по обеспечению доступности.


В рамках проекта будут проведены дополнительные мероприятия для улучшения архитектурной среды с учетом следующих целей: облегчение доступа к нужным местам с минимальными усилиями и возможность свободного передвижения внутри помещений банка, обеспечение безопасности маршрутов и зон обслуживания клиентов, предоставление МГН полноценной и качественной информации для ориентации, использование оборудования (включая самообслуживание) и получение услуг.

Разработка проекта МОДИ для офиса АО "ГПБ" , расположенного по адресу г. Москва, пр-т Вернадского, д. 37, к. 2.

После реализации указанных в проекте модификаций, инвалиды всех групп мобильности смогут свободно передвигаться от входа к внутренним помещениям банка.

Проведенная работа в офисах Газпромбанка необходима для создания безбарьерной среды, обеспечения доступности инвалидов. Соответствие концепции доступной среды подразумевает отсутствие лестницы и единый плоский вход в здание. Если здание уже построено и убрать лестницу невозможно, для обеспечения доступности устанавливается пандус.

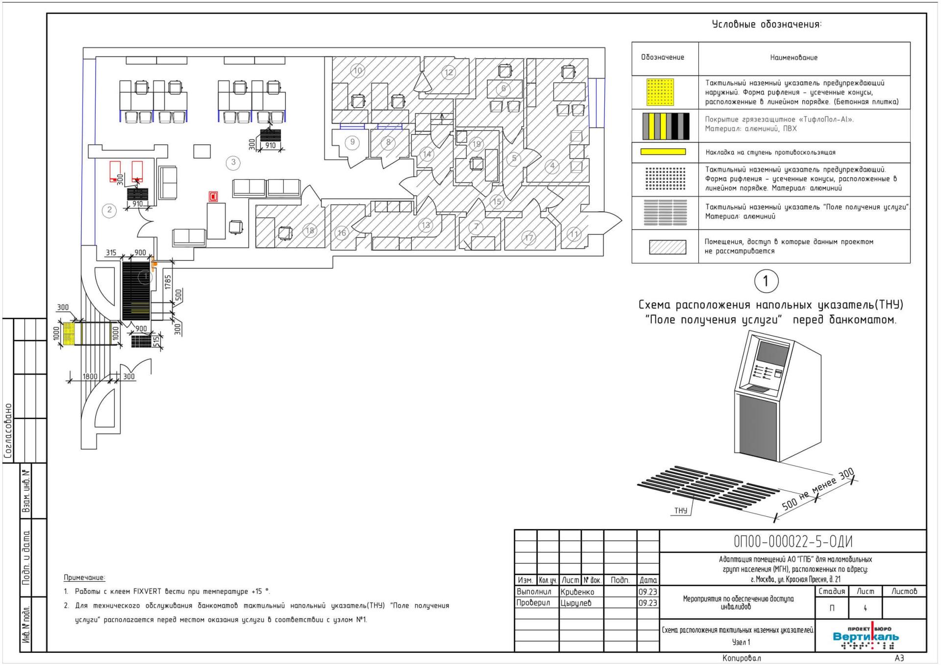
Проект для инвалидов по обеспечению доступной среды офиса АО "ГПБ", расположенного по адресу г. Москва, Красная Пресня д. 21.

Отсутствие лестниц, высоких поребриков и других препятствий в общественных местах создает доступное социальное пространство. Каждый гражданин независимо от функциональных ограничений должен иметь возможность беспрепятственно добираться к социально значимым местам, беспрепятственно передвигаться в них, получать необходимую информацию, услуги.

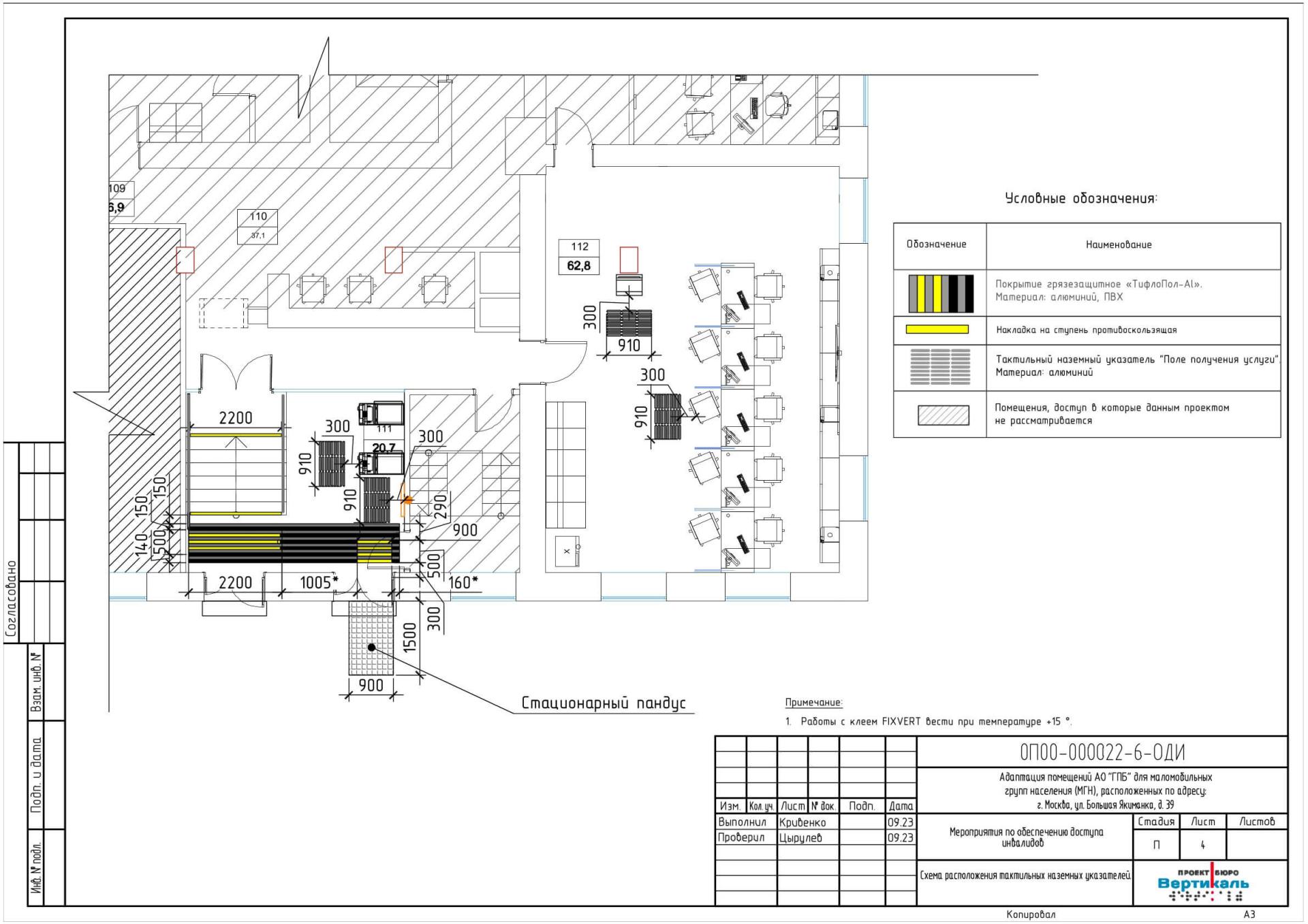
Проектирование раздела МОДИ для офиса АО "ГПБ", расположенного по адресу г. Москва, Большая Якиманка, д. 39. 

Доступная среда гарантирует равные условия использования для всех. Она избегает выделения или “навешивания ярлыков” и предусматривает безопасность, надежность, неприкосновенность частной жизни и удобство для всех пользователей, делая пространство привлекательным.

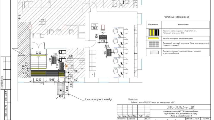
Так, например, в проекте, выполненном в помещении офиса банка АО "ГПБ" по адресу г. Москва, Верхиний Михайловский пр., д. 9., стр. 11. было предусмотрено внедрения пандуса, необходимого для обеспечения доступности помещния банка МГН (людям передвигающимся на креслах-колясках, родителям с колясками и т.д.). 

Но наличие пандуса не является панацеей: если есть лестница или пандус, должен быть и плоский подъем, чтобы обеспечить удобный вход в помещение. Лифт рядом с лестницей дает возможность выбора удобного способа подъема. Доступная среда должна предусматривать индивидуальные настройки и учитывать различные предпочтения и возможности пользователей социального пространства.

Проект входной группы и холла для АО "ГПБ", расположенного по адресу г. Москва, Рязанский пр-т, д. 71, корп. 1.

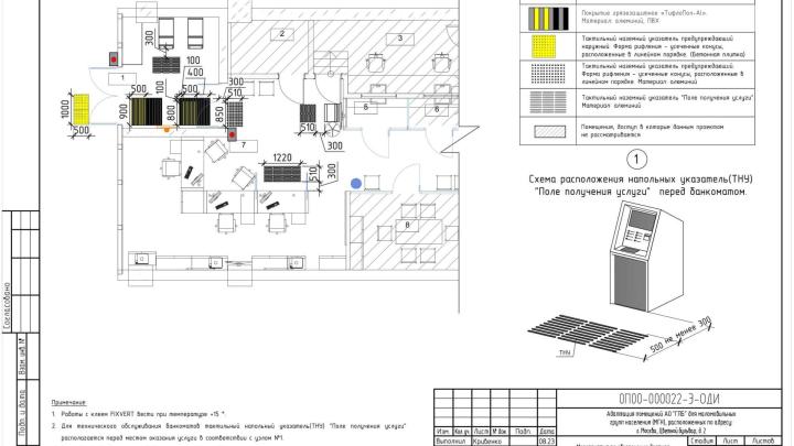
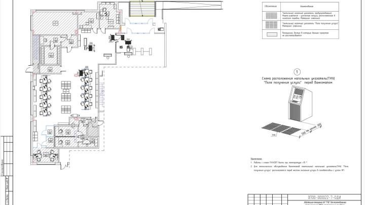
В помещения банка, согласно принципам доступной среды и МОДИ, банкоматы должны располагаться на разных высотах, без лестниц или других препятствий перед ними, чтобы обеспечить доступ для всех групп пользователей, включая тех, кто пользуется инвалидными колясками.

Согласно федеральной программе “Доступная среда” гарантируется, что независимо от возможностей восприятия и внешних условий, пользователи смогут получить необходимую информацию, благодаря универсальному дизайну и соответствующим правилам. Графические обозначения в помещении банка позволяют каждому человеку, даже не знающему местного или иностранного языка, понять, куда идти для получения услуг, где находятся уборная и т.д.

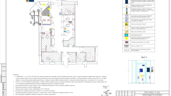
Проект раздела ОДИ для офиса АО "ГПБ", расположенного по адресу г. Москва, Верхиний Михайловский пр., д. 9, стр. 11. 

Дублирование информации на телеэкранах разными способами, включая язык жестов и бегущую текстовую строку, увеличивает доступность информационной среды, а вместе с ней и удобство пользования, нахождения в социально значимых пространствах.

Тактильные наземные указатели (ТНУ) и тактильные визуальные указатели (ТВУ) помогают определить направление движения.  Информация предоставляется различными способами: визуальным, вербальным и тактильным. Важная информация излагается кратко и максимально ясно. Необходимая информация выделяется (увеличенным шрифтом, определенным цветом). Применение контрастных цветов также является значимым.

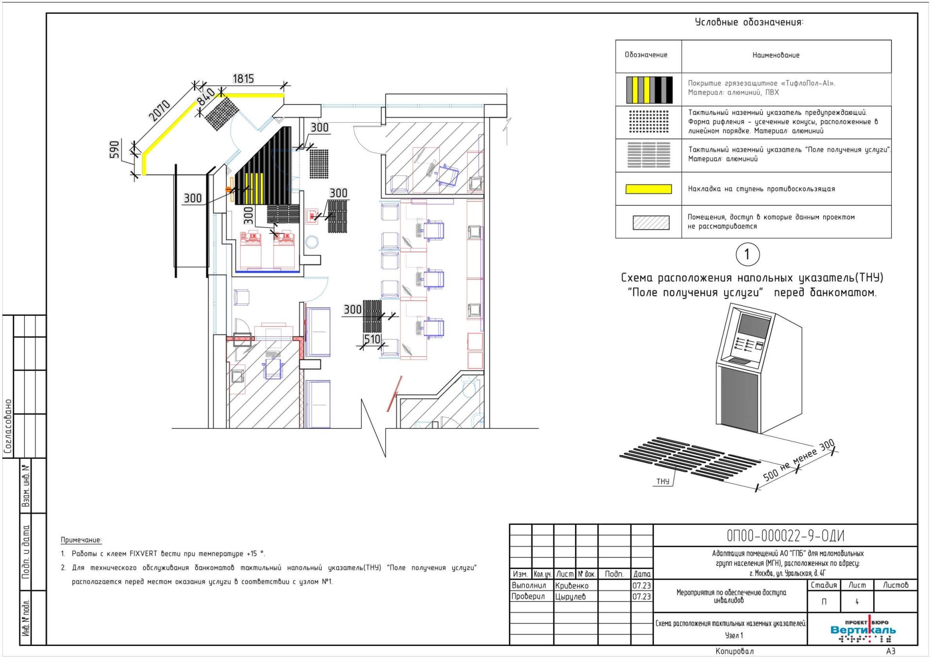
Разработка доступной среды для инвалидов в офисе АО "ГПБ", расположенного по адресу г. Москва, ул. Уральская д. 4Г.

В проектах доступной среды могут использоваться и универсальные решения. К универсальным решениям можно отнести: выключатели, расположенные на комфортной для всех высоте; двери с ручкой,  расположенной на комфортной высоте для любого человека вне зависимости.

Применение универсальных решений при проектировании и создании доступной среды значит, что всем пользователям  удобно использовать конкретный предмет, конкретную зону или помещение в целом, прилагая при этом минимум усилий; все группы населения остаются в комфортном положении при использовании и нахождении в публичных и социально значимых пространствах.

Для обеспечение комфортного пребывания в публичных и социально значимых пространствах необходимо обеспечить доступность информации, ее своевременное получение человеком.

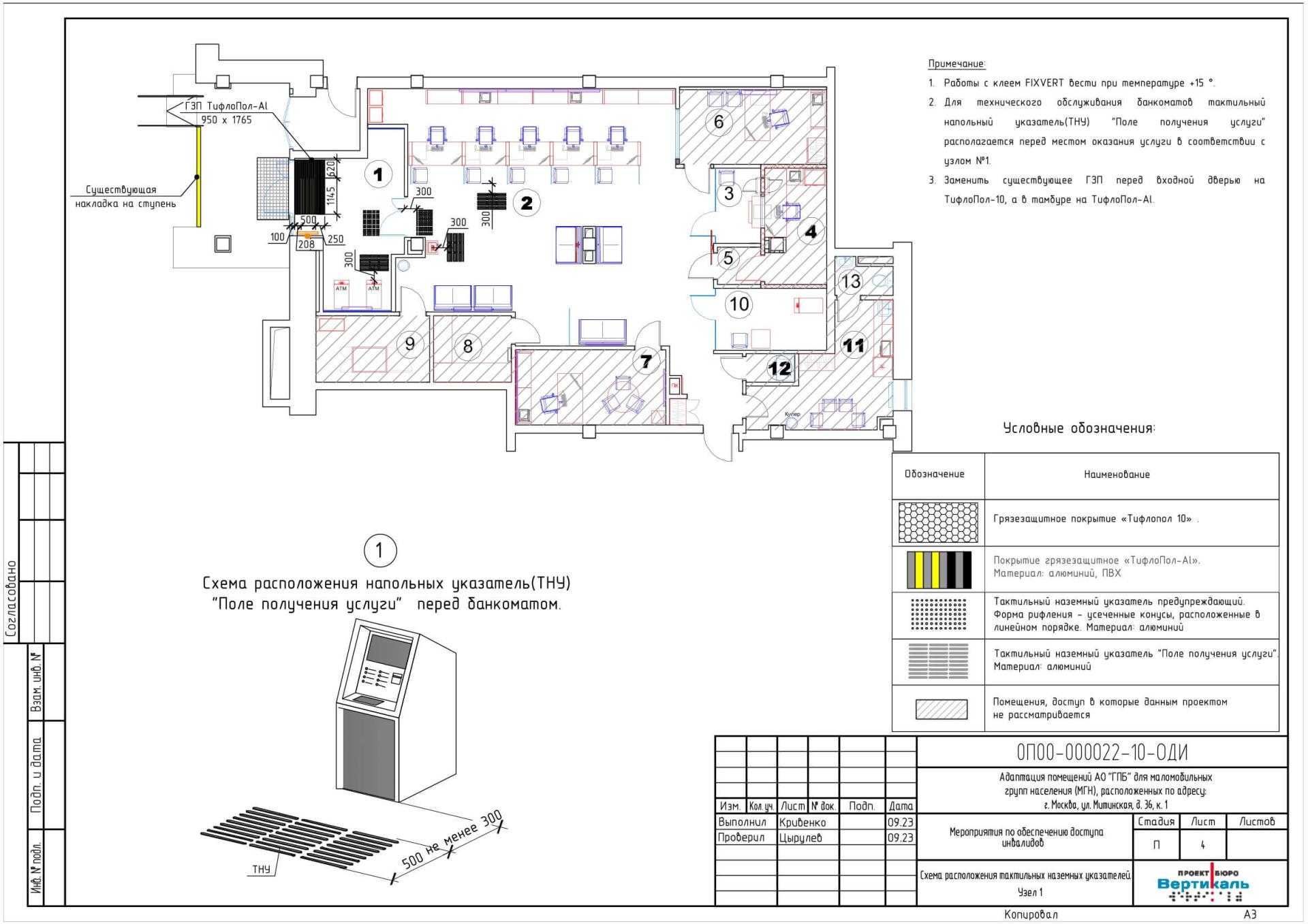
Разработанный проект МОДИ в помещении АО "ГПБ", расположенного по адресу г. Москва, ул. Митинская д. 36к. 1.

В результате внедрения разработанных модификаций люди со всеми типами инвалидности смогут свободно перемещаться по зданию, беспрепятсвенно получать услуги.

После реализации проекта, разработанного компанией "Вертикаль", люди с ограниченными возможностями и представители маломобильных групп получат свободный доступ в помещения и смогут свободно передвигаться  к местам получения услуг в помещениях более чем 10 офисов банка.

При проектировании МОДИ в каждом из представленных офисов банка  прошло обследование помещения, по итогам которого составились графические эскизы: обмерный план помещений, план помещений до адаптации с указанием пути перемещения и пути эвакуации МГН, схема распложения тактильных визуальных указателей, схема расположения тактильных наземных указателей.

При проектировании авторы и архитекторы работали с использованием следующих нормативных и регламентирующих документов:

  • СП 59.13330.2020 «Доступность зданий и сооружений для маломобильных групп населения». Актуализированная редакция СНиП 35-01-2001.
  • ГОСТ Р 51261-22 «Устройства опорные стационарные для маломобильных групп населения. Типы и общие технические требования».
  • СП 136.13330.2012 «Здания и сооружения. Общие положения проектирования с учетом доступности для маломобильных групп населения» (с Изменениями №1).
  • СП 138.13330.2012 «Общественные здания и сооружения, доступные маломобильным группам населения. Правила проектирования» (с Изменениями №1).
  • ГОСТ Р 50602-93 «Кресла-Коляски. Максимальные габаритные размеры».
  • ГОСТ Р 52131-2019 «Средства отображения информации знаковые для инвалидов. Технические требования».
  • ГОСТ Р 52875-2018 «Указатели тактильные наземные для инвалидов по зрению.Технические требования».

Закажите проект банка на выгодных условиях.

Выделите опечатку и нажмите Ctrl + Enter, чтобы отправить сообщение об ошибке.