Работаем по всей России

Доступная среда для дворца водных видов спорта в г Екатеринбурге

В основе архитектурного проекта лежат следующие исходные данные:

  • Техническое задание на строительство "Дворец водных видов спорта в г. Екатеринбурге";
  • Эскизный проект, разработанный архитектурным бюро ARCHINFORM;
  • Согласованные Специальные Технические Условия (СТУ) на проектирование и строительство, в части пожарной безопасности объекта. Проектная документация разработана в соответствии с действующими нормами, правилами и нормативными документами.

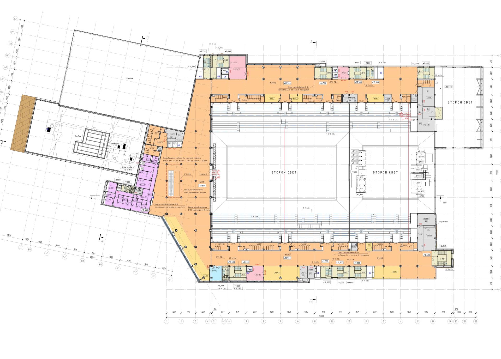
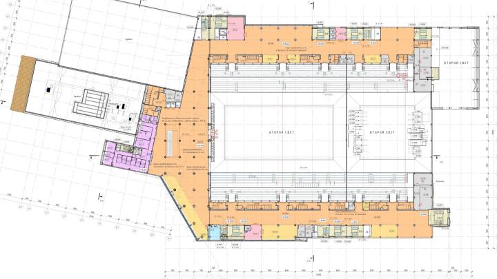
В рамках проекта предусмотрено строительство Дворца водных видов спорта (ДВВС) и двух контрольно-пропускных пунктов (КПП):

  • Для пешеходов и транспорта.
  • ДВВС представляет собой комплекс сооружений для водных видов спорта, предназначенный для проведения спортивных мероприятий и соревнований российского и международного уровней, а также развития массового спорта.
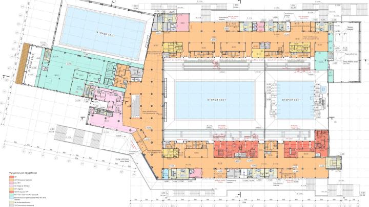
  • Основными объектами ДВВС являются спортивные бассейны (демонстрационные и тренировочные), залы для тренировок перед соревнованиями, включая залы сухого плавания, сухих прыжков и хореографии, а также функциональная зона с детскими бассейнами для обучения плаванию и приобщения детей к воде.

Комплекс предназначен для двух режимов функционирования:

  • Проведение спортивных соревнований и мероприятий, во время которых объекты комплекса используются участниками соревнований, а остальные граждане являются зрителями, а также проведение тренировок, обучения плаванию и оздоровления для всех категорий граждан.
  • Планировочная организация спортивного сооружения выполнена с учетом действующих нормативных документов, технического задания на проектирование и требований Универсиады.

Проектируемый участок строительства расположен в Деревне Универсиады в районе Новокольцовского г. Екатеринбурга. Въезд на участок осуществляется с проектируемых улиц - Новокольцовской.

Проектная документация составлена в соответствии с требованиями "Положения о составе разделов проектной документации и требованиях к их содержанию", утвержденного Постановлением Правительства Российской Федерации от 16.02.2008 № 87, а также требованиями задания на проектирование, техническими условиями, национальными стандартами и сводами правил. Соблюдение данных требований обеспечивает соответствие Федеральному закону № 384-ФЗ от 30.12.2009 "Технический регламент о безопасности зданий и сооружений", перечень которых утвержден Постановлением Правительства РФ № 1521 от 26.12.2014, а также Федеральным законам Российской Федерации.

Прозрачные двери, установленные на входах и внутри здания, выполнены из прочного материала, устойчивого к ударам. На прозрачных панелях дверей предусмотрена яркая контрастная маркировка размером 0,2х0,1 м (высота), размещенная на высоте от 1,2 м до 1,5 м от поверхности пешеходного пути. Глубина тамбуров составляет не менее 2,45 м.

На первом этаже со стороны главного фасада расположены зоны досмотра. Для маломобильных групп населения предусмотрен проход через турникет шириной не менее 1,0 м, приспособленный для пропуска инвалидов на креслах-колясках. Пороги в дверных проемах и перепады высот пола не превышают 0,014 м.

В здании установлены пассажирские лифты, обеспечивающие доступ инвалидов на креслах-колясках на этажи выше основного входа в здание (первый этаж), а также для перемещения сотрудников и посетителей. У каждой двери лифта, предназначенного для инвалидов, установлены тактильные указатели уровня этажа. Напротив выхода из таких лифтов на высоте 1,5 м расположено цифровое обозначение этажа размером не менее 0,1 м, контрастное по отношению к фону стены.

Для перемещения посетителей по вертикали в здании предусмотрены лифты и эскалаторы. Назначение лифтов следующее:

  • ЛФ1, ЛФ2: группа лифтов, предназначенных для перемещения прессы, зрителей и маломобильных групп населения (МГН).
  • ЛФ3: лифт, предназначенный для сотрудников административного блока здания.
  • ЛФ4: грузопассажирский лифт с двумя функциями - грузовой лифт для спуска в подземный этаж и лифт для перевозки пожарных подразделений. Он имеет зону безопасности для инвалидов на 2-3 этажах и тамбур-шлюз на подвальном этаже.
  • ЛФ5, ЛФ6: группа лифтов, предназначенных для перемещения посетителей, в том числе МГН, с 1 по 3 этаж. Оба лифта также могут использоваться для перевозки пожарных подразделений и имеют зону безопасности для инвалидов на 2-3 этажах.
  • ЛФ7: лифт, предназначенный для перемещения персонала VIP, VVIP, Super VVIP и МГН с 1 этажа на 2 этаж в Демонстрационный плавательный бассейн.
  • ЛФ8: лифт, предназначенный для перемещения персонала VIP, VVIP и МГН с 1 этажа на 2 этаж в Демонстрационный прыжковый бассейн.
  • ЛФ9: лифт, предназначенный для перемещения посетителей, МГН и сотрудников с 1 этажа по 3 этаж. Он также может использоваться для перевозки пожарных подразделений и имеет зону безопасности для инвалидов на 2-3 этажах. Отделка лифтов для пожарных подразделений выполнена из негорючих материалов.

Зрители спортивных мероприятий на Универсиаде могут войти на стадион через вход на 1 этаже в осях 12-13\Ф. Для зрителей VIP/VVIP предусмотрены входные зоны на первом этаже в осях 10-11\Б и 17-18\Б. СМИ имеют отдельную входную зону в осях 10\1 - 11\1\А\1.

Главная группа зрителей поднимается на 2 этаж с помощью лифтов ЛФ5 и ЛФ6. Помещения для зрителей находятся на втором и третьем этажах здания. В холлах для зрителей есть точки быстрого питания, гардеробы и туалеты.

Приняты дополнительные меры для обеспечения свободного передвижения зрителей внутри здания:

  • На трибунах выделены места для инвалидов, составляющие не менее 5% от общего числа зрителей. В этих местах есть комфортные сидения для инвалидов, включая кресла-коляски. Остальные 4% мест находятся в зонах, где доступны системы сурдоперевода и аудиокомментирования.
  • Обеспечен доступ в медицинский пункт на 2-м этаже.
  • Расстояние от любого места, где находится инвалид, до ближайшего эвакуационного выхода или люка на трибунах не превышает 40 метров.
  • На трибунах предусмотрены места для зрителей на креслах-колясках, а также для зрителей с нарушениями зрения и слуха.
  • В конференц-зале, обеденном зале кафе и пресс-баре есть места для инвалидов на креслах-колясках.
  • На 2 и 3 этажах предусмотрены зоны отдыха с удобствами, включая места для инвалидов на креслах-колясках, каждые 30 метров.
  • На трибунах отведена зона для зрителей на креслах-колясках с площадкой и уклоном не более 1,5%. Каждое место имеет размеры не менее 0,9×1,4 метра.
  • Ширина проходов между рядами для инвалидов на креслах-колясках составляет не менее 1,6 метра (с учетом места для сидения - 3,0 метра).

Дополнительные меры для посетителей МГН в бассейнах включают:

  • Доступность для МГН во все вспомогательные помещения, включая вестибюли, гардеробы, раздевалки, душевые, туалеты, сауны и комнату дежурной медсестры.
  • Обходные дорожки шириной не менее 2 метров, доступные для МГН.
  • На обходных дорожках есть места для хранения кресел-колясок.
  • Вдоль внешней границы обходных дорожек бассейнов для МГН есть стационарные скамьи высотой 0,5 метра.
  • Инвалиды на креслах-колясках могут попасть в бассейн с помощью специальных устройств для опускания/подъема, таких как подъемник BluOne производства DIGI Progect s.n.c. из Италии. Этот подъемник из нержавеющей стали с пантографом и подвижными подлокотниками может поднять человека весом до 120 килограммов.
  • Душевые для инвалидов с нарушением опорно-двигательного аппарата имеют открытую кабину с нескользким полом. Кабина оборудована переносным или складным сиденьем, расположенным на высоте не более 0,48 метра от уровня поддона, ручным душем и настенными поручнями. Размеры сиденья составляют не менее 0,5 метра по глубине и длине.

Закажите проект прямо сейчас!

Выделите опечатку и нажмите Ctrl + Enter, чтобы отправить сообщение об ошибке.