Работаем по всей России

Устройство пандуса-конструктора у входной группы в городе Тюмень «Детская школа искусств «Этюд»

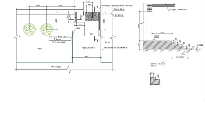
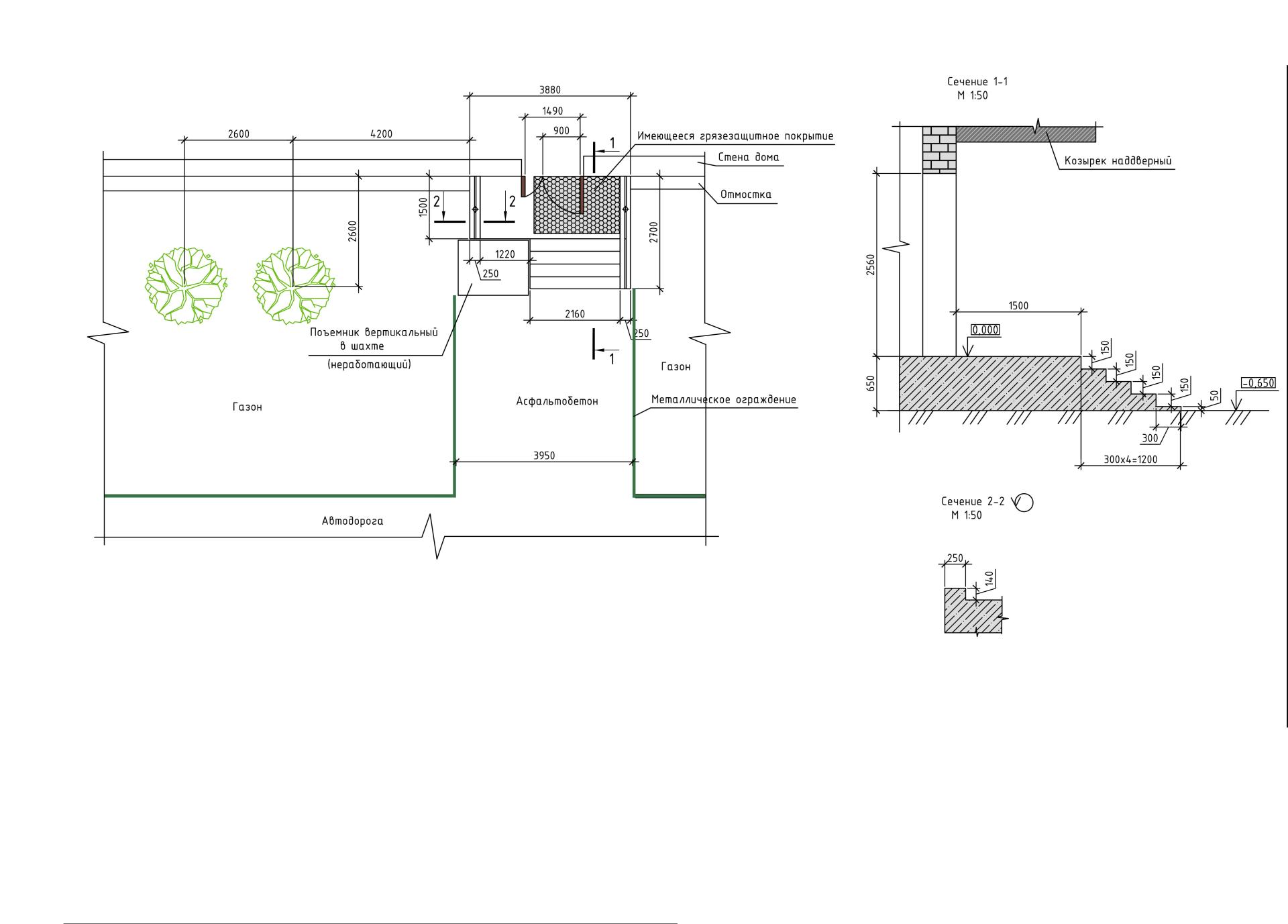
Целью данного проекта является обеспечение беспрепятственного доступа для людей с ограниченными возможностями и маломобильных групп населения (МГН) к помещениям Детской школы искусств "Этюд" в городе Тюмени. В рамках проекта осуществляется обустройство входной группы пандусом-конструктором с применением принципа "разумного приспособления". Расположение объекта: г. Тюмень, ул. Текстильная, д. 21/2.

Разработка рабочей документации основывается на следующих источниках:

  • техническое задание на разработку рабочей документации;
  • предоставленные заказчиком исходные данные;
  • соответствующие действующие стандарты (ГОСТы) и правила.

Проектные решения, представленные в данной документации, не ограничивают условия жизнедеятельности и возможности других групп населения, находящихся в помещениях Объекта. После реализации предусмотренных мероприятий, инвалиды групп мобильности М1-М4 смогут свободно перемещаться от центрального входа здания к внутренним помещениям Объекта без препятствий.

Демонтажные работы Перед установкой пандуса-конструктора необходимо выполнить следующие работы:

  1. Снять неработающий вертикальный подъемник.
  2. Демонтировать часть металлического ограждения вдоль дорожки к крыльцу с левой стороны на протяжении 1900 мм.
  3. Произвести спиливание дерева, которое мешает установке пандуса для движения в помещения Объекта МГН группы М4. При выполнении этих работ следует быть осторожным, чтобы не повредить рядом расположенное дерево.

Монтажные работы

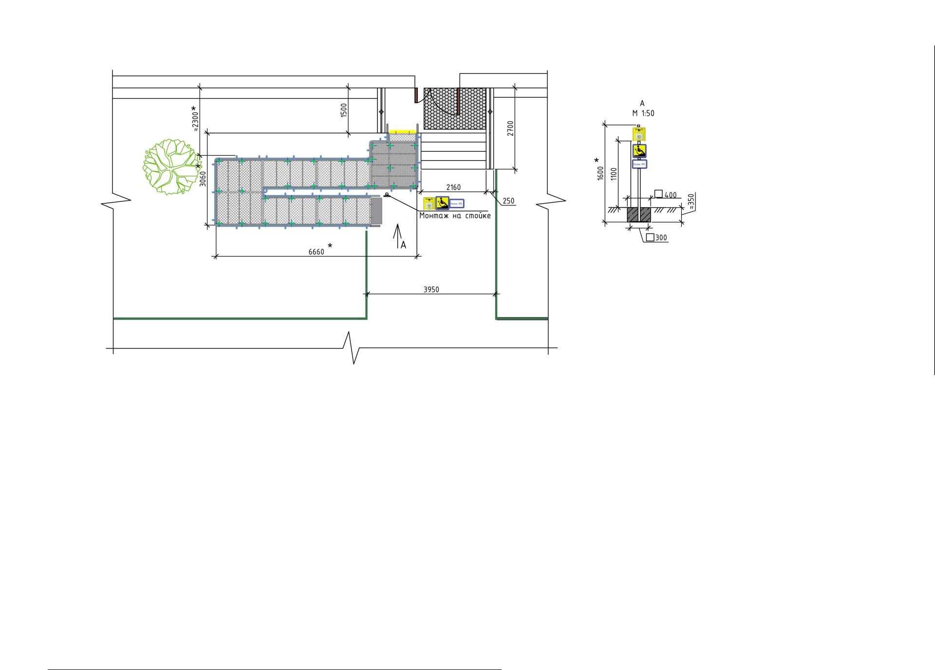
  1. Установить пандус-конструктор. В соответствии с инструкцией производителя, опорные стойки пандуса могут быть установлены либо на специальных бетонных основаниях размером 300х300х300 мм, залитых бетоном класса В15, либо непосредственно на грунт при достаточной плотности, учитывая местные условия.
  2. В случае ограниченного пространства допускается увеличение уклона пандуса до 1:10 при длине его наклонных плоскостей до 5,0 м, при этом перемещение людей на кресле-коляске должно осуществляться с помощью сопровождающих лиц. Пандус-конструктор имеет уклон на обоих участках 1:11 (9,03%) для предотвращения спиливания второго дерева.
  3. Установить стойку перед заездом на пандус-конструктор, на которой будет установлена кнопка вызова персонала для ситуационной помощи, знак "Осторожно! Крутой подъем" и табличка "не более 8%" (согласно пункту 4.3.9.3 ГОСТ Р 52131-2019).
  4. Перед монтажом кнопки вызова персонала для ситуационной помощи, оснастить ее пластиковой подложкой (комплект кнопки включает самоклеющуюся основу). Разместить приемное устройство сигналов системы вызова помощи "Тифловызов" мод. ПС-999 в месте постоянного пребывания персонала.

Закажите проект прямо сейчас!

Выделите опечатку и нажмите Ctrl + Enter, чтобы отправить сообщение об ошибке.