Работаем по всей России

Обустройство путей движения и эвакуации в школе для МГН в Московская обл

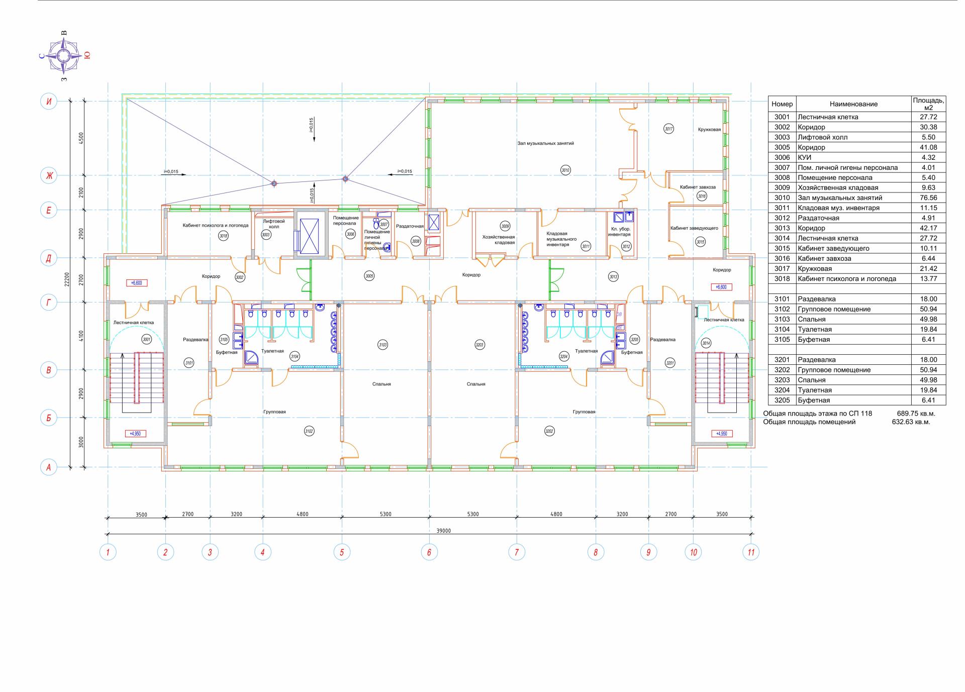
Данный проект разрабатывается с целью обеспечения удобного доступа для людей с ограниченными возможностями и маломобильных групп населения (МГН) в дошкольную образовательную организацию на 130 мест. Основной принцип проекта - "разумное приспособление" путей движения и эвакуации с использованием различных типов указателей: напольных, настенных, визуальных, тактильно-визуальных и наземных. Объект находится в стадии строительства и расположен в Наро-Фоминском районе, г.п. Апрелевка, Московская область.

Рабочая документация разработана на основе технического задания, предоставленного заказчиком, и с учетом действующих ГОСТов и правил. Проект включает комплекс мероприятий, направленных на улучшение архитектурной среды и соблюдение следующих принципов:

  1. Обеспечение удобного доступа к целевым местам по кратчайшим путям и свободного передвижения внутри помещений объекта.
  2. Обеспечение безопасности путей движения и эвакуации.
  3. Предоставление МГН своевременной и полноценной информации, необходимой для ориентации в пространстве.

Проектные решения не ограничивают жизнедеятельность и возможности других групп населения, находящихся в помещениях объекта. После внедрения мероприятий, предусмотренных проектом, инвалиды с различными уровнями подвижности (группы М1-М4) смогут свободно перемещаться от центрального входа здания к внутренним помещениям объекта.

В проекте предусмотрен отдельный путь движения МГН групп М1-М4 от центрального входа к внутренним помещениям объекта. Доступ МГН групп М1-М4 осуществляется через центральную входную дверь с нулевого уровня. Центральная входная группа состоит из двупольной входной стеклянной двери и двух тамбуров с также стеклянными двупольными дверями.

В соответствии с требованиями СП 59.13330.2020, входные двери, предназначенные для инвалидов и МГН, должны быть хорошо заметными и иметь знак, указывающий на доступность здания. В проекте предусмотрена контрастная маркировка на прозрачных створках дверей в виде кругов диаметром 0,2 м, расположенных на двух уровнях - 0,9 м и 1,3 м.

На нерабочих (зафиксированных) створках дверей также предусмотрена контрастная маркировка в виде прямоугольников высотой 0,1 м и шириной 0,2 м, расположенных на той же высоте. Маркировка должна быть применена с обеих сторон дверного полотна.

Закажите проект прямо сейчас!

Выделите опечатку и нажмите Ctrl + Enter, чтобы отправить сообщение об ошибке.